

"Now to him who is able to do above and beyond all that we ask or think according to the power that works in us— to Him be glory in the church and in Christ Jesus TO ALL GENERATIONS, forever and ever."
EPHESIANS 3:20-21
"Now to him who is able to do above and beyond all that we ask or think according to the power that works in us— to Him be glory in the church and in Christ Jesus to all generations, forever and ever."
Ephesians 3:20-21


Our New Building!
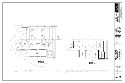
The future isn’t just coming—it’s here! We are thrilled to announce that thanks to your incredible generosity, the NEXUS Building Campaign has successfully collected every dollar pledged. With $1 million in funding secured, the final architectural design for our new 5,400-square-foot facility is now underway. This two-story building is designed to meet our growing needs, featuring dedicated areas for children’s ministry, adult discipleship, and administrative workspace for staff and volunteers.
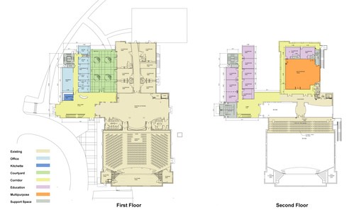
The newly designed outdoor patio area will be an incredible place for gathering with friends while here at Team Church!
The newly designed outdoor patio area will be an incredible place for gathering with friends while here at Team Church!

OUR PLANS











Our One Purpose Continues!
Our One Purpose is what determines our prayerful direction as a church. Stayed Tuned! Soon we will be sharing what is Next with NEXUS as we move forward!
REACHING PEOPLE FOR CHRIST
In January of 1999, my wife Kelly and I, with three other young couples, began an incredible journey and planted a new church in Matthews, NC. Team Church began for the purpose of reaching people where they are in life and leading them to full devotion in Jesus Christ. Through a biblically driven and culturally relevant philosophy, we have been able to see many people become fully devoted followers of Jesus! These very same people have joined us in the One Purpose that has guided Team Church for 25 years.
In our journey together as a young church, we found ourselves using multiple locations for all of our ministries. Then, in an act of faithful courage, the people of Team Church joined together to pray and sacrificially give so that we could build our current, incredible church building. Our phase-one building is beautiful, and the ministries that it provides have become a beacon of hope in our community. However, with the current growth of our current church ministries (kids ministries, student ministries, adult ministries, etc)... we need more ministry room!
In light of all of this and after many months of prayer, discussions, and a steadfast commitment as a church family to stay the course of our original God-given One Purpose; the Lead Team and Staff have determined that it is time to build phase-two. As you will experience over the next few months, NEXUS is about continuing our original One Purpose: “To reach people where they are and lead them to full devotion in Jesus Christ”.
A NEXUS is the point at which a connection or link takes place to join two things together in perfect harmony. It is time to connect our Team Church past to God’s future! When it comes to practical life-changing ministry, our new building is going to connect what God has done over the last 25 years to what He is going to do in the next chapter of our church.
As we will learn (and our NEXUS logo implies), this incredible new journey that begins the next chapter will only be accomplished by US… the people of Team Church. Those of US here today at Team Church are next up to continue the legacy. We are the people of Team Church that God will use to connect our faithful past to what God has next for US. Therefore, I want to personally invite you to join me in NEXUS!
What started as a God-inspired dream 25 years ago will continue to develop as we all begin to pray about how God can personally use US to be the NEXUS between the past and future of Team Church.
After 25 years, I am still excited!
Dr. Kenny Hibbard
Lead Pastor
In our journey together as a young church, we found ourselves using multiple locations for all of our ministries. Then, in an act of faithful courage, the people of Team Church joined together to pray and sacrificially give so that we could build our current, incredible church building. Our phase-one building is beautiful, and the ministries that it provides have become a beacon of hope in our community. However, with the current growth of our current church ministries (kids ministries, student ministries, adult ministries, etc)... we need more ministry room!
In light of all of this and after many months of prayer, discussions, and a steadfast commitment as a church family to stay the course of our original God-given One Purpose; the Lead Team and Staff have determined that it is time to build phase-two. As you will experience over the next few months, NEXUS is about continuing our original One Purpose: “To reach people where they are and lead them to full devotion in Jesus Christ”.
A NEXUS is the point at which a connection or link takes place to join two things together in perfect harmony. It is time to connect our Team Church past to God’s future! When it comes to practical life-changing ministry, our new building is going to connect what God has done over the last 25 years to what He is going to do in the next chapter of our church.
As we will learn (and our NEXUS logo implies), this incredible new journey that begins the next chapter will only be accomplished by US… the people of Team Church. Those of US here today at Team Church are next up to continue the legacy. We are the people of Team Church that God will use to connect our faithful past to what God has next for US. Therefore, I want to personally invite you to join me in NEXUS!
What started as a God-inspired dream 25 years ago will continue to develop as we all begin to pray about how God can personally use US to be the NEXUS between the past and future of Team Church.
After 25 years, I am still excited!
Dr. Kenny Hibbard
Lead Pastor
Our Opportunity
Hey Team Church! Stayed Tuned! Soon we will be sharing what is Next with NEXUS as we move forward!
Hey Team Church! Stayed Tuned! Soon we will be sharing what is Next with NEXUS as we move forward!
Pray Now
Starting now, you have the opportunity to pray about what God wants you to sacrificially give to NEXUS. What is God asking you to give so that we can “connect our past to God’s future” at Team Church?
Give One-Time Upfront Amount
From now until the end of this year (2023), you will have the opportunity to give an upfront, cash, stock, or gifts-in-kind to our NEXUS Year End Gift!
Make Pledge
On Sunday, December 3rd, you will have the opportunity to turn in a pledge card and make a sacrificial financial commitment to be given over 25 months: January 2024 – February 2026.
Celebrate What God Did
On Sunday, January 14th, on our 25th Anniversary as a church, we will reveal what was given in upfront gifts and the total amount pledged! What a great day that will be!
Our Next NEXUS Steps
Hey Team Church! Stayed Tuned! Soon we will be sharing what is Next with NEXUS as we move forward!

YEG Goal: GO Missions, Ministry & New Church Plant in St. Petersburg
$135,000
To fund all Team Church Missions happening in 2024

Complete Large Capacity Sewer System
$45,000
Installed ASAP in 2024. Need to secure capacity from city and we have an aging septic tank.

New Building, Atrium Expansion & Courtyard
$3,110,000
Will be built before the renovation and be in use during the renovation so ministry can continue.

Renovation of Current Kids' Ministry Areas
$460,000
The final step to our God size next generation ministry goals!
OUR NEXUS 25-MONTH GOAL IN CASH/ASSETS UP FRONT AND IN TOTAL PLEDGES TO BE COMPLETED BY JANUARY 2026:
$3,750,000
** Our prayer is to not start any construction of the new building until we are confident that we can do so without taking out a building loan as construction begins. We know that God can do “above and beyond” all that we can ask or imagine! It will take each of US following the direction of God as to what we each sacrificially give and commit to NEXUS!
Our Stories!
New NEXUS personal stories coming soon!
Justin & Lauren's Story
"I really love the fact that our church is adding on and thinking of the next generation... The thought that one day my grandchildren will be in church with me makes me emotional".
"We unexpectantly were able to pay off our student loans this year. Yay! We are going to use the same monthly amount to put toward our NEXUS 25-Month Pledge so we can get in our new building faster!"
"I got the best email today. I have been logging my volunteer hours with All-Stars Ministry in the volunteer portal at work. I earned a $500 grant to the organization where I serve. Yay for NEXUS as it is all going to NEXUS Year-End Gift!"
"My wife and I prayed about how we could sacrificially give and make a pledge for two years. I was able to pick up some Saturday extra work hours once in a while and we will use that to give towards our pledge."
"The Lord impressed on me how much my family spends on coffee and that part of our 25-month pledge could come from not just spending as much on as we do on expensive coffee. While sitting in my car praying through this my daughter text me to bring her a coffee. I went in to get the coffee and out of nowhere the guy behind me offers o pay for my coffee and said he was 'paying it forward.' God was showing me he can use my money too."
Our Ways To Give
Stay Tuned!

Make A Pledge
COMING SOON
Reminder: This pledge is separate from and does not include any gift given to NEXUS Year-End Gift.

Give Stocks
COMING SOON
If you'd like to contribute by giving stocks, provide us with your contact information using the link below, and our Team Church staff will reach out to you shortly.
NEXUS Year-End Gift
Give Now until December 31st (2023)
Reminder: Anything given between now and December 31st will go to NEXUS Year-End Gift. It is not a part of your pledge. It is a one-time gift this year (by end of 2023) that helps us get money now so we can build faster!
** NOTE: Be sure to select "Nexus Year-End Gift" under the FUND drop-down menu.
Start & Finish With Prayer
It is comforting that The Lord knows each of us and our life-situations personally. He knows our past, present, and future. This, of course, is also true when it comes to our personal finances, the USA economy, and every other economic variable that impacts our life. This is why Team Church would never tell anyone what they should give to NEXUS. It is about praying and then giving what God ask of you.
1
START PRAYING
Start praying now about the sacrificial amount God would have you give. He knows your situation. He knows what is going to happen in your life over the 25 months of NEXUS.
2
HAVE CONVERSATIONS
Have conversations with everyone in your family who is also praying and will be a part of your sacrificial giving to NEXUS. What do you all believe God is asking of your family as you desire to be a part of NEXUS?
3
PARTICIPATE IN OUR 14-DAY PRAYER JOURNEY
Participate in our 14-day prayer journey from November 5th – 18th! Journals will be available in print and digital.
4
TURN YOUR PRAYERS AND FAITH INTO ACTION
Turn your prayers and faith into action as you make a giving decision that honors God, stretches your faith, and is right for you/family.
FAQs
New information coming soon!
What is NEXUS?
Great question. The website page you are on answers that question. Have fun reading all we have provided.
Will I be told what to give?
Nope. We are asking each person to PRAY. LISTEN. OBEY. GIVE. If each person takes their part serious and prays about what God would have them sacrificially give... That is all we ask.
When do I give my NEXUS Year End Gift?
- After you are done praying and are ready to give.
- You can give any time before Dec. 31st, 2023! Everything given in 2023 to NEXUS YEG (Year-End Gift) goes directly to that fund.
- You can give cash, stocks, and gifts-in-kind.
When do I turn in my 25-month pledge?
- After you are done praying.
- Then, on Dec 3rd in both Sunday services we will have a meaningful time for each person/family to bring their pledge and place it in the treasure chest that will be at the front.
- That is a great symbolic time in worship that you won’t want to miss. However, everyone here or not here on that day will be asked to record the same information their Fellowship One giving account.
- Pledges can be recorded anytime from now until January 14th.
Make A Pledge
What if I don’t know how to use a computer or know how to put my pledge information on Fellowship One?
Then your pledge card will be used by our finance administrator to record your pledge.
When will we know what was given up front in 2023 and pledged over 25 months?
Sunday, January 14th is our 25th Anniversary. During both regular services we will celebrate what was given and pledged.
When will we be able to start building?
Great question. Here is a long, but complete answer!
NEXUS Year End Gift is about GO MISSIONS and Team Church MINISTRY!
However, we can’t renovate until we build the new building. Hence, everything is in steps. The first step is the Sewer, next is the new building, the final is the renovation. We have cast a large multi-step vision and we are excited to see what only God can do through willingness to give sacrificially. “Above and Beyond”!!!
NEXUS Year End Gift is about GO MISSIONS and Team Church MINISTRY!
- The first $135,000 will go straight to our GO MISSIONS 2024 partners! This year, part of that also includes our NEXT church plant in St. Petersburg, FL. Be praying for AJ and Liberty Holt!
- The next $45,000 will go immediately to our new Sewer System that must be designed and started ASAP in 2024. We can’t miss out on securing our sewer capacity and get things “flowing” ASAP!
- The rest of our NEXUS Year End Gift money will be placed in the NEXUS Building fund. Our proposed and needed building is $3.1 Million. Everything given will go directly toward our new building. The speed at which we can have the architects finalize the plans, the contractors can start permitting, and the like, is all based on the amount we have set aside in the building account.
- As you know, the final step to our NEXUS goal is the complete renovation of our current upstairs building. $460,000
However, we can’t renovate until we build the new building. Hence, everything is in steps. The first step is the Sewer, next is the new building, the final is the renovation. We have cast a large multi-step vision and we are excited to see what only God can do through willingness to give sacrificially. “Above and Beyond”!!!
